为保证疫情防控期间在线教学的正常开展,促进教师之间交流线上教学经验,规范线上教学流程,保障线上教学的高质量,永利yl的“线上教学公开课”正如火如荼的进行当中。
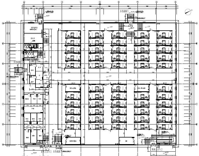
3月17日,永利yl李国刚老师完成了一堂生动的案例教学课,依靠自身较为丰富的工程实践经验,以长春某在建方舱医院的建筑图、地质剖面图以及实际现场施工视频、照片为素材,结合岩土工程勘察有关知识,在线上逐步开展了方舱医院的模拟建设。极大的提高了同学们的学习热情,取得了很好的教学效果。

教学过程中,同学们参与到“线上方舱医院”的建设,使同学们充分深入到工程实践当中,运用计算机,亲自动手从事岩土工程勘察的每一项工作,增加了同学们的参与度。同时针对单一工程对知识理解的局限性,给同学们展示了多个工程案例,如国信酒店、办公楼、热电厂等项目,能够加深同学们对书本知识的理解,扩展他们的知识面。


为提高面对疫情下同学们的精神状态,转引施工现场工程技术人员的实际工作经历,使同学们能够意识到有无数人在为我们默默地奉献着,增加了同学们的爱国热情。
疫情终将过去,所有人都是英雄!
